2 Carraig Dun,

Killorglin, Co. Kerry

bathroom3
bedroom4
garages183
garagesA3

Quick Summary

Map

Description

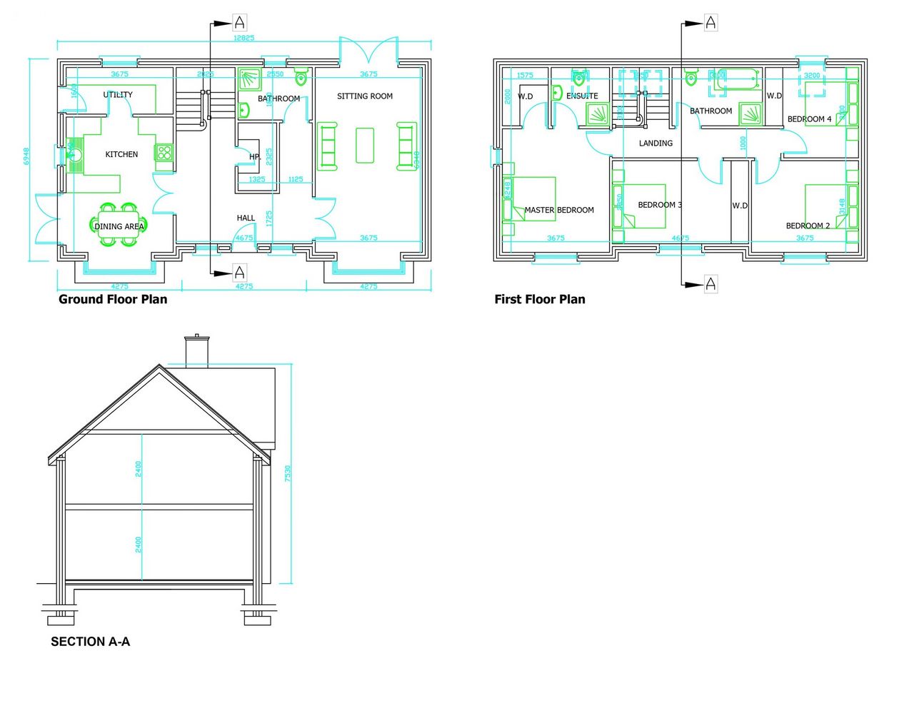
NEW TO MARKET A3 Rating with air to water heating and heat recovery ventilation Jim Burns Town & Country Auctioneers are delighted to bring to market 2 Carraig Dn, Ballymacprior, Killorglin, Co. Kerry Excellent opportunity to purchase a spacious 183m2 (1970 sq.ft) 2 storey house in a most sought after area close to Killorglin Town. The property is situated in a quiet cul de sac development of 7 houses. The house is within walking distance of Killorglin Town with 2 excellent Secondary Schools, 3 National Schools in the Killorglin Parish and all local amenities such as Supervalu, Euro Spar, Aldi, Bars Restaurants, Caf's. The house is currently being sold as a Builders finish with stone front and coble loc driveway, concrete floors, excellent electrical specification, oil condenser boiler, painted internally and externally. It will feature a high level of insulation with a heat pump central heating system to achieve an A3 rating The property is very well located in the heart of the Reeks District. Convenient to Killarney approx. 20minutes, Tralee approx. 30minutues, and Kerry Airport. The property is within easy reach of Rossbeigh Blue Flag Beach, Caragh Lake, Cromane, Dooks Beaches. Ideally suited as a family home. Accommodation: Ground Floor: Entrance Hall, Sitting Room, Kitchen/Dining Room, Bathroom. First Floor: Landing, 4 Bedrooms (1 Ensuite and 1 Walk in Wardrobe), Bathroom, Hot-Press. Features: Spacious 4 bed detached house PVC Double glazed windows Cobble loc driveway Spacious site Walking distance to Killorglin Town Concrete floors Stone fronted In cul de sac development of 7 Houses Garden in Lawn Spec: 3500.00 allowed for a white painted stairs - 150mm Half splayed/Shaker skirting (Painted) - 90mm Half splayed/Shaker architrave (Painted) - White painted finish for internal walls and ceilings - Shannon moulded 4 panel smooth door provided - handles and hinges - Satin nickel - Heating system - Heatpump - Aluminium radiators - Heat Recovery Ventilation system - Bathroom ware supplied and fitted - Provisionally BER - - Pre cast concrete floors - Double glazed windows External finishes - External painting - lawns completed - Footpaths - Tarmacadam finish to driveway - Bespoke railing finish to cap off boundary walls Joint selling agent with Ken O'Sullivan & Co. 69 New Street, Killarney, Co. Kerry About Killorglin Killorglin occupies a scenic position overlooking the River Laune and backed by the dramatic slope of McGillycuddy Reeks. It is situated at the beginning of the World famous Ring of Kerry, part of the Wild Atlantic Way. Killorglin is the gateway to the Reeks District. Killorglin is an attractive place to live, work, and do business. It has good transport links, a vibrant community, social life and great cultural heritage. Killorglin is home to a variety of business across a range of sectors including Aqua Design, Astellas, Fexco, RDI Hub, Temler and Tweak. DISCLAIMER: Jim Burns & Co. Ltd for themselves and for the vendors or lessors of the property whose agents they are, give notice that: (i) The particulars are set out as a general outline for the guidance of intending purchasers or lessees, and do not constitute part of, an offer or contract. (ii) All descriptions, dimensions, references to condition and necessary permissions for use and occupation, and other details are given in good faith and are believed to be correct, but any intending purchasers or tenants should not rely on them as statements or representations of fact but must satisfy themselves by inspection or otherwise as to the correctness of each of them. (iii) No person in the employment of Jim Burns & Co. Ltd has any authority to make or give representation or warranty whatever in relation to this property.

Request Inquiry
Jim Burns Auctioneers